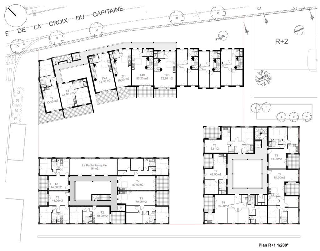
50 logements collectifs

Localisation: ZAC EAI, Montpellier
Maitre d’ouvrage: ACM Habitat
Programme: 50 logements collectifs sociaux inclusifs
Mission: Mission complète
Surface: 3640 m2
Prix: 5 000 000 HT
Phase : Chantier en cours



50 logements collectifs

Localisation: ZAC EAI, Montpellier
Maitre d’ouvrage: ACM Habitat
Programme: 50 logements collectifs sociaux inclusifs
Mission: Mission complète
Surface: 3640 m2
Prix: 5 000 000 HT
Phase : Chantier en cours


