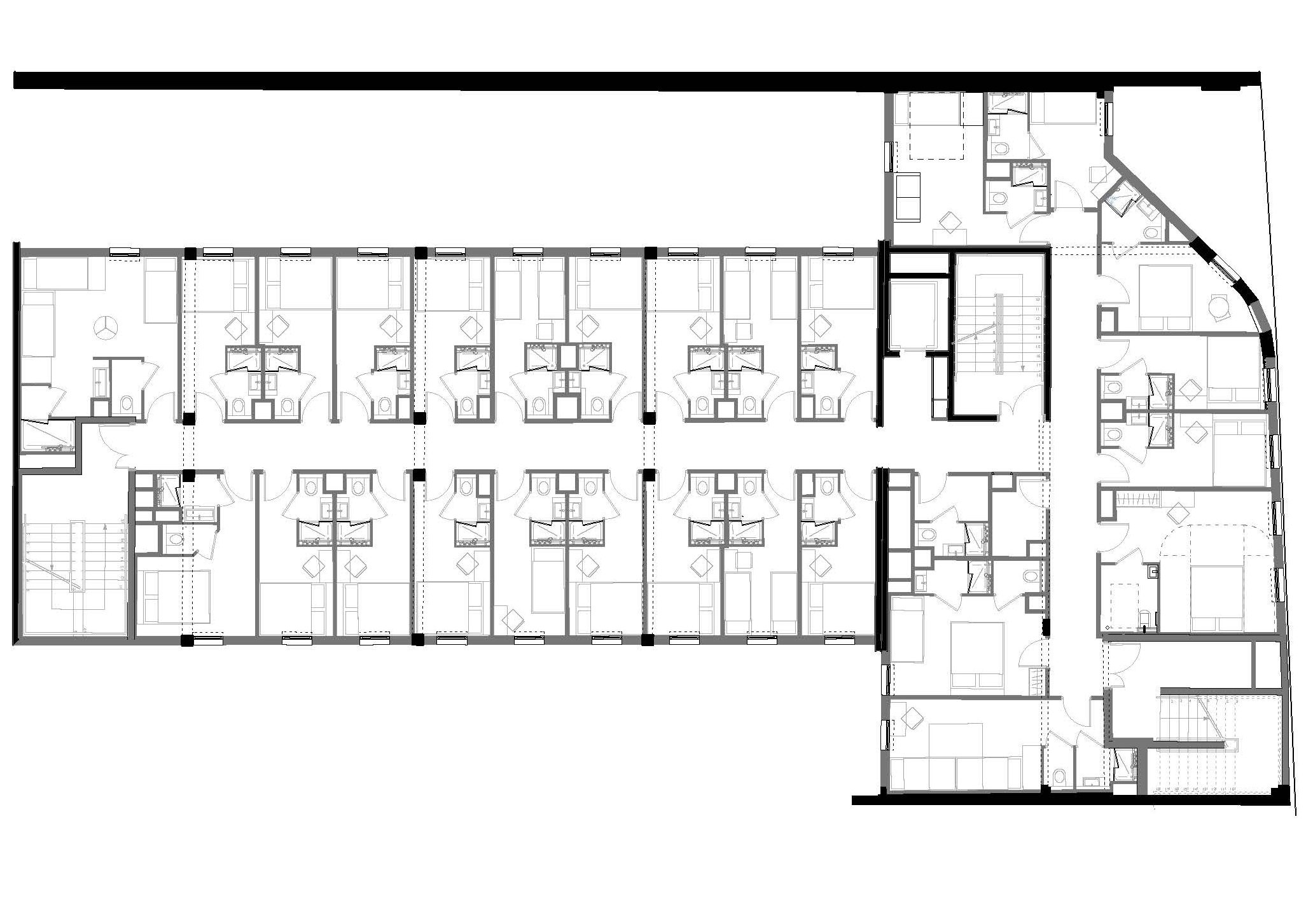
Réhabilitation de bureaux en 110 chambres d’hôtel

Localisation: Ecusson, Montpellier
Maitre d’ouvrage: Aquipierre
Programme: réhabilitation de bureaux en 110 chambres d’hôtel
Mission: DCE
Surface: 2400 m2
Prix: 4 000 000 HT
Phase : Livré







Réhabilitation de bureaux en 110 chambres d’hôtel

Localisation: Ecusson, Montpellier
Maitre d’ouvrage: Aquipierre
Programme: réhabilitation de bureaux en 110 chambres d’hôtel
Mission: DCE
Surface: 2400 m2
Prix: 4 000 000 HT
Phase : Livré






