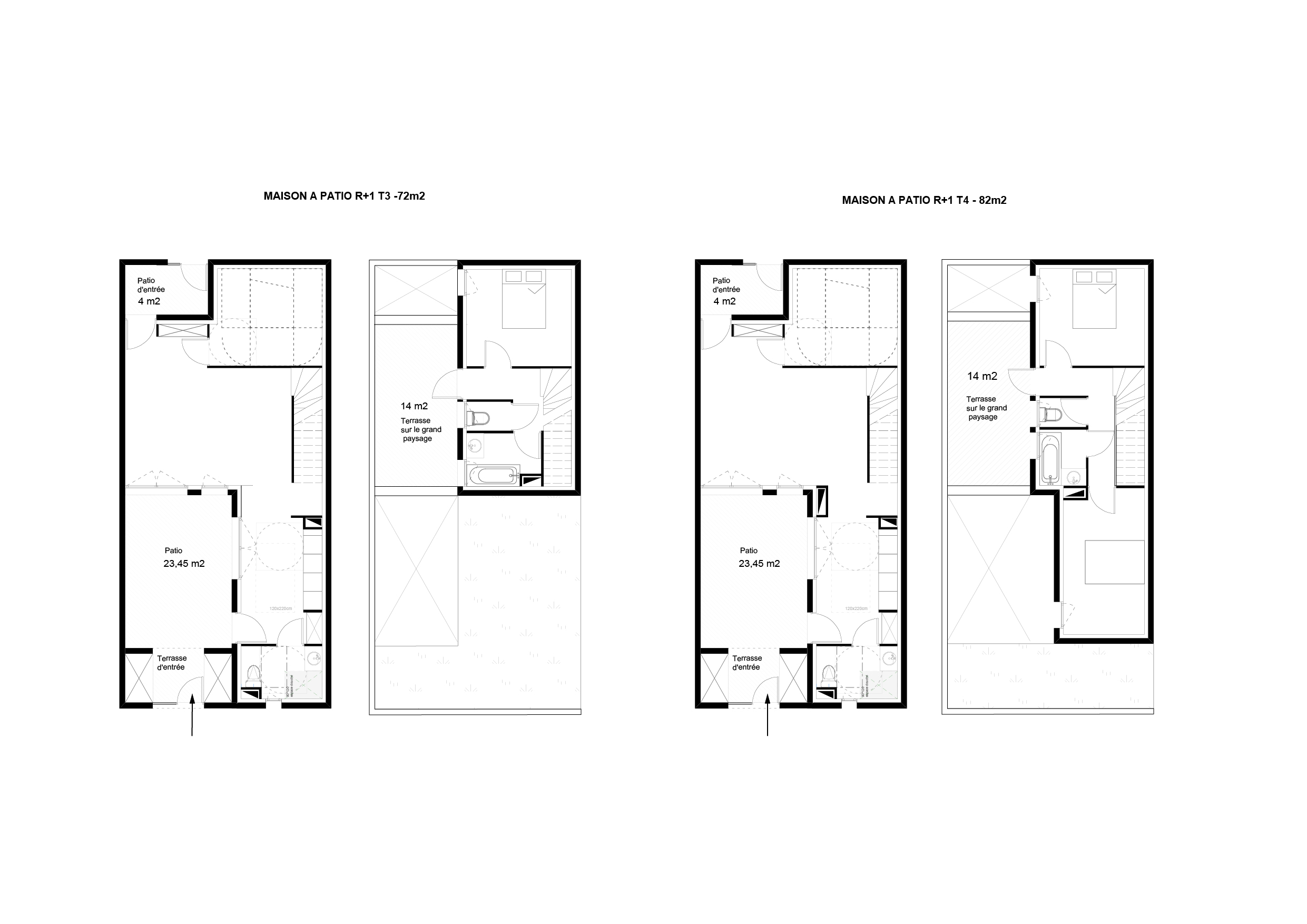
Concours 83 logements Localisation: Zac de la Font commune de Mauguio- Maitre d’ouvrage: Urbis et Promologis Programme: 83 logements collectifs sur 3 lots Mission: Concours Surface: 5 469 m2 Prix: 2 190 000 HTPhase : Concours Similaire