
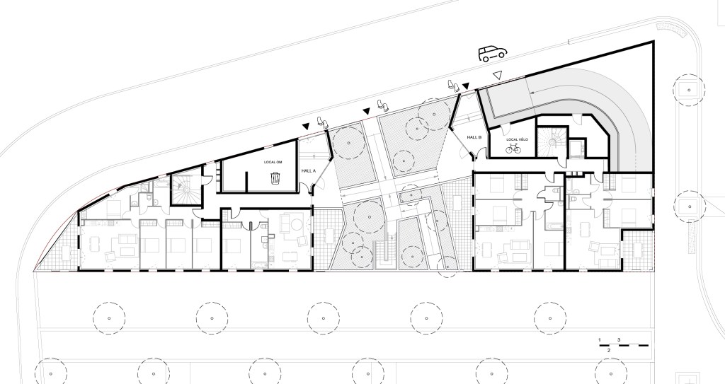
Localisation: Zac Ovalie, Montpellier
Maitre d’ouvrage: ACM
Programme: 23 logements collectifs
Mission: Concours
Surface: 1812 m2
Prix: 1 750 000 HT
Phase : Concours



Localisation: Zac Ovalie, Montpellier
Maitre d’ouvrage: ACM
Programme: 23 logements collectifs
Mission: Concours
Surface: 1812 m2
Prix: 1 750 000 HT
Phase : Concours

